Modra odločitev za vaš življenjski projekt

  • Stanovanje
  • 3-sobno
  • 64.3 m2
  • 1935
  • 2023

Ljubljana mesto, Vič-Rudnik, Rudnik

Cena: 349.000 €

Splošno

  • Šifra: SP66
  • Tip: Stanovanje
  • Št. sob: 2
  • Velikost: 64.3 m2
  • Nadstropje: Visoko pritličje/1
  • Leto izgradnje: 1935
  • Leto adaptacije: 2023
  • Opis lokacije: Dolenjska cesta

Podroben opis

DOLENJSKA CESTA – popolnoma prenovljeno 3‑sobno stanovanje (64,3 m²) s parkiriščem

Na prodaj je izjemno prijetno, svetlo in moderno prenovljeno stanovanje v tri stanovanjskem objektu na Rudniku. Stanovanje je bilo leta 2023 v celoti obnovljeno z materiali višjega kakovostnega razreda in je pripravljeno za takojšnjo vselitev.

Osnovne značilnosti:

  • 3‑sobno stanovanje
  • Površina: 60,3 m²
  • Pripada mu shramba 4m²
  • Parkirno mesto pred hišo
  • Možnost dodatnega parkiranja v neposredni bližini

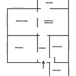
Razporeditev prostorov:

  • dnevni prostor 
  • kuhinja z jedilnico
  • dve spalnici
  • kopalnica
  • hodnik
  • shramba

Obnova stanovanja (2023)

Stanovanje je bilo v celoti prenovljeno:

  • zamenjane vse električne in vodovodne inštalacije
  • popolnoma prenovljena kopalnica
  • novi tlaki
  • izvedeno talno ogrevanje
  • nova notranja vrata
  • protivlomna vhodna vrata s pettočkovnim zaklepanjem
  • nova okna
  • na novo obdelane vse stene

Uporabljeni so bili materiali višjega cenovnega razreda, pohištvo je izdelano po meri lokalnega mizarja.

Obnova objekta:

  • fasada 2024 – 17 cm izolacije
  • streha 2014

Priključki:

  • ogrevanje na plin
  • klima (ogrevanje in hlajenje)
  • optika

Lokacija:

  • bližina nakupovalnega centra Supernova
  • bližina šole, vrtca, pošte, trgovine, LPP postaje
  • centra mesta je 10 minut s kolesom

Ostalo:

  • zemljiškoknjižno urejeno
  • etažirano
  • takoj vseljivo

Za podrobne informacije in ogled pokličite.

Pogoj prodajalca pri prodaji je, da mu kupec povrne del stroškov prodaje nepremičnine, ki ustreza vrednosti 2% (+ DDV) od pogodbene cene.

Ostala naša ponudba: www.mp-projekt.si

 

Kontaktiraj

agent Jelena Lašič

Jelena Lašič

  • 031/511-111
  • jelena.lasic@mp-projekt.si

Dodatno

Dodatno
Parkirišče Shramba Zastekljen balkon
Luksuz
Klima
Priključki
Elektrika Voda Kanalizacija Optika Plinovod
Ogrevanje
Plin Klima