Direktor
Nepremičninski posrednik
Pisarna Kranj
Direktor
Nepremičninski posrednik
Pisarna Kranj
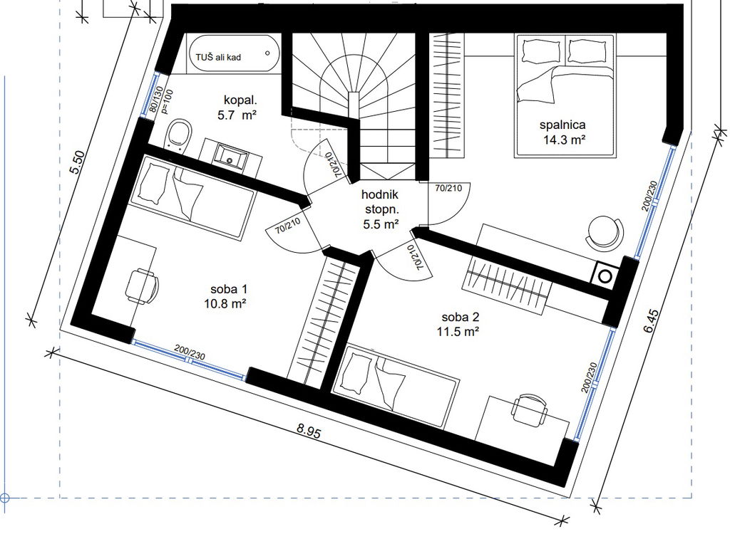
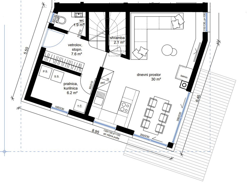
Kranj – Primskovo, na iskani lokaciji prodamo enoto stanovanjskega dvojčka v izgradnji, v skupni izmeri 130m2, na parceli 194m2.
Zgrajena je v gabaritih pritličje in nadstropje.
Sončna pozicija, odličen tloris, veliko svetlobe.
Razporeditev prostorov:
Značilnost gradnje:
Ogrevanje in prezračevanje:
Lokacija:
Hiša bo dokončana do IV. podaljšane gradbene faze (manjkale bodo talne obloge, keramika, svetila, stikala) in vseljiva l.2026.
Za podrobne informacije, dokumentacijo, načrte in ogled, pokličite.
Pogoj prodajalca pri prodaji je, da mu kupec povrne del stroškov prodaje nepremičnine, ki ustreza vrednosti 2% (+ DDV) od pogodbene cene.
Ostala naša ponudba: www.mp-projekt.si
