Modra odločitev za vaš življenjski projekt

  • Stanovanje
  • 1-sobno
  • 46.9 m2
  • 1973

Gorenjska, Tržič, Bistrica pri Tržiču

Cena: 147.000 €

Splošno

  • Šifra: SP42
  • Tip: Stanovanje
  • Št. sob: 1
  • Velikost: 46.9 m2
  • Nadstropje: 4/4
  • Leto izgradnje: 1973

Podroben opis

Bistrica pri Tržiču, na dobri lokaciji prodamo 1-sobno stanovanje, z balkonom in kletjo.

Stanovanje skupno meri 46,9m2 (neto površina 35,8m2, balkon-loža 5,3m2, klet 5,8m2). 

Nahaja se v 4. nadstropju nizkega stanovanjskega bloka, l. 1973, z zamenjano streho in obnovljeno fasado. Blok nima dvigala.

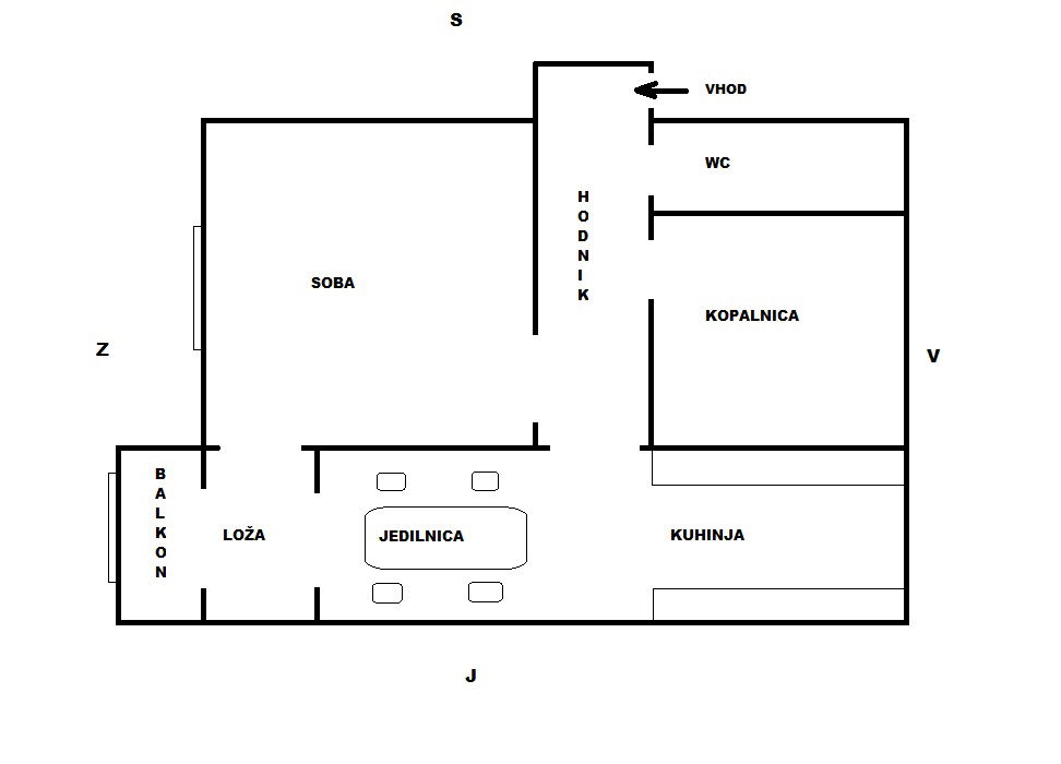
Razporeditev prostorov: 

  • hodnik,
  • WC,
  • kopalnica,
  • kuhinja,
  • jedilnica z izhodom na balkon-ložo,
  • soba z izhodom na balkon-ložo,
  • klet.

Stanovanje je bilo delno obnovljeno l. 1999. 

Ogrevanje prostorov: CK.

Ogrevanje vode: elektrika.

Nizki obratovalni stroški. 

Parkiranje: v okolici bloka je na razpolago dovolj parkirnih mest.

Lokacija:

  • Bistrica pri Tržiču, le par minut vožnje od centra Tržiča in dobre pol ure od Ljubljane
  • Odlična prometna povezava – bližina avtoceste Ljubljana–Jesenice.
  • Narava na dosegu roke – v neposredni okolici so priljubljene izletniške točke: Dobrča, Kriška gora in Bistriška planina.
  • Vsa infrastruktura v bližini: trgovine, šola, vrtec, zdravstvene storitve in športna igrišča.
  • Mirno okolje – idealno za družine ali posameznike, ki poleg udobnega bivanja cenijo stik z naravo.

Stanovanje je takoj vseljivo.

Ogled je možen kadarkoli po predhodnem dogovoru.

Pogoj prodajalca je, da mu kupec povrne del stroška prodaje nepremičnine, ki ustreza znesku 2% od pogodbene vrednosti + DDV 22%.

Ostala ponudba naših nepremičnin: www.mp-projekt.si

 

Kontaktiraj

agent Marjan Pičulin

Marjan Pičulin

  • 041/747-738
  • marjan.piculin@mp-projekt.si

Dodatno

Dodatno
Balkon Klet
Luksuz
Lep razgled Bližina narave
Priključki
Elektrika Voda Kanalizacija